产品中心

Product Center

首页 > 产品中心 > 昱暐基座、基板>11005系列MC八面基座

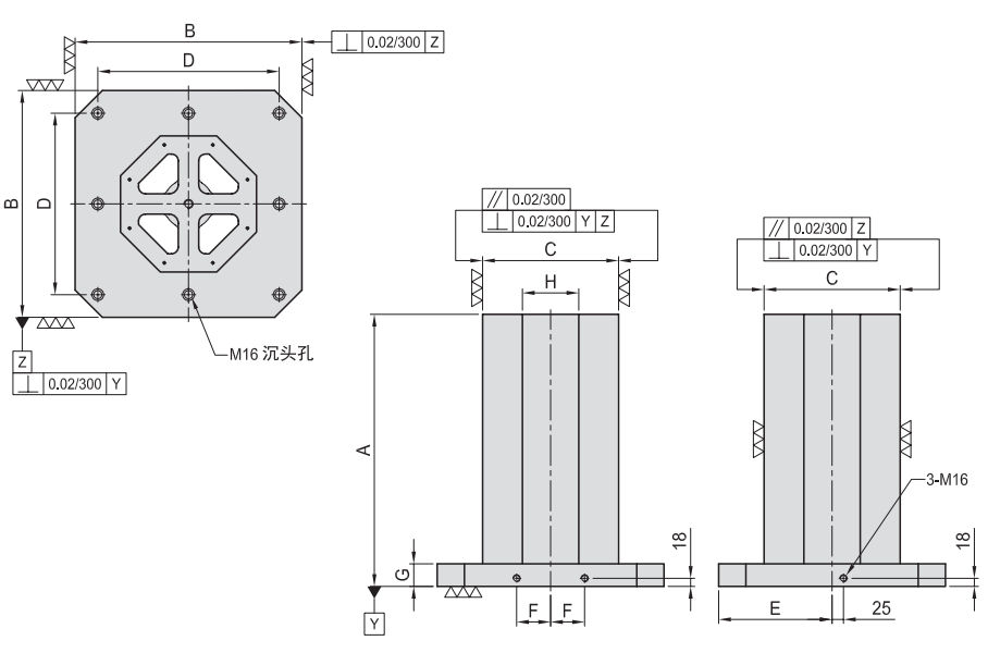
11005系列MC八面基座

型号:BP33 

材质:FC30 

热处理:烧钝 

用途:适用于卧式MC 

特长:可依实际需要,自行钻孔加工制作专用治具






产品详情

A[93SXLV8%0`3JIT@CGN(~B.png



1686118819262.jpg