产品中心

Product Center

首页 > 产品中心 > 米其林-磨床夹具>71017系列正弦工具万力

71017系列正弦工具万力

订货号:71017 

型号:MCL-A2,A3,A4,A5,A6,A7,A8,A9,A10 

材质:SK2,硬度:HRC56°±2° 

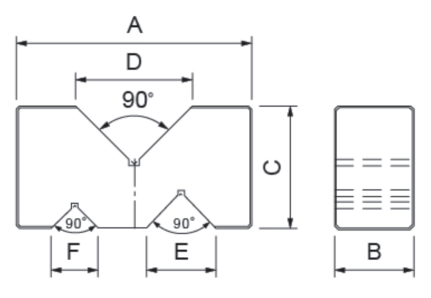
V型槽精密度:0.005mm以内 此款V型块两个为一组,

尺寸相同,V型槽角度精准。 

经精密研磨,可检验心轴的同心度。

产品详情